top of page
Global Radio HQ Interior Design
Manchester . UK . 2016
in Construction
L07, L08 . XYZ Building Manchester
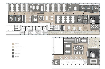
HQ office of Global Radio located in Manchester, including radio stations, open working space on level 01, meeting room and executive space on second floor.
Worked as Project Leader at S2A Architects in Concept Design and Design Development stage.
Type : Interior Fit Out
Role : Project Leader
Interior Contractor : Overbury Manchester
Client: Global Radio UK


bottom of page










